Scenic Design & Scenic Art Assist

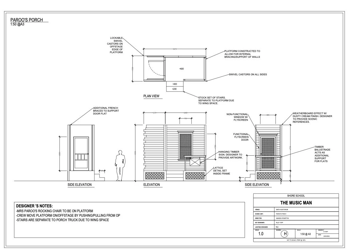
The Music Man

Shore School

Ken & Joan Smith Auditorium

March 2022


Book, Music, & Lyrics by Meredith Willson

Story by Meredith Willson & Franklin Lacey

Director: Amanda Crompton

Producer & Assistant Director: Romy Clugston

Musical Director: Kim Barber

Choreographer: Lisa Steiner

Costume Design: Suzanne Wilding-Hart

Lighting Design: Andrew Kinch

Sound Design: Trevor Beck

Technical Director: Heidi Brosnan

Hair & Makeup: Meray Wolsley

Direction/Design Assistant: Luke Gallant

Set Construction: Bestoked

Cast: Students from SHORE, Loreto Kirribilli, Roseville College, Wenona, Kincoppal, SCEGGS Darlinghurst, & Willoughby Girls

Stills

by Daryl Charles


Stills

by Riley Tapp


Design


Process


Previous
Previous

Dear Mama

Next
Next

The Last Lesson